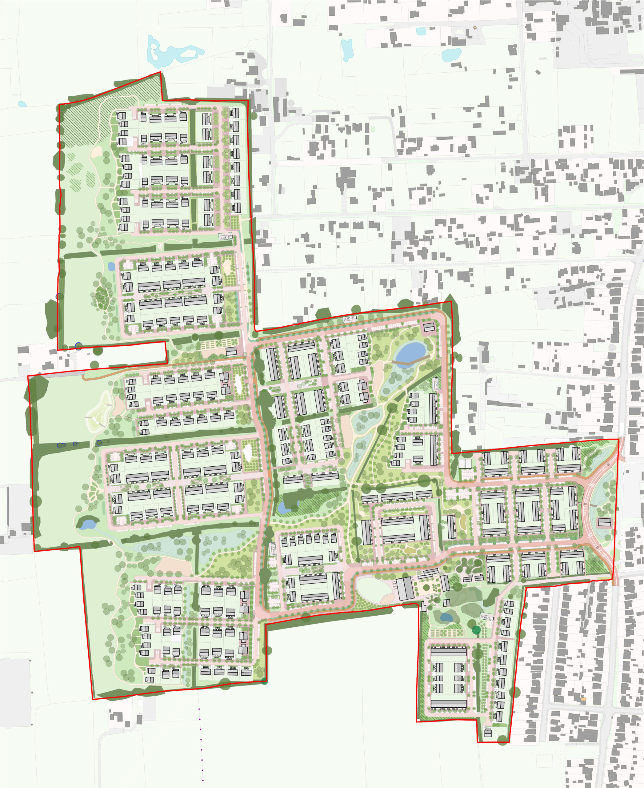
We have been working in close collaboration with the local council and community to develop an outline masterplan for up to 850 zero-waste homes on grey-belt land in Basildon. As masterplanner and lead consultant, Mikhail Riches have worked together with gs8 and Boehm Lynas to develop an outline masterplan with a sensitive response to the landscape, drawing on the qualities of the site’s edge of town character, hedgerows, mature trees and open views. This landscape-led approach to grey-belt land acts as a blueprint for creating new planet positive communities that prioritise active travel and create well overlooked spaces for children to play.
“A sustainable housing development promising ‘zero energy bills’ should be the blueprint for new homes across the country.”
Steve Reed
Secretary of State for Housing on gs8’s grey belt developments


